188㎡
    535㎡
    4
    3
    3
    dom
    na sprzedaż
    4 600 000 PLN
    24 468 PLN / ㎡
    dom
    na sprzedaż
    4 600 000 PLN
    24 468 PLN / ㎡
    VIA125037
    188㎡
    4
    3
    3

    Warszawa Wilanów

    Ekskluzywna rezydencja w sercu Miasteczka Wilanów

    LOKALIZACJA:
    Mieszkanie leży w reprezentacyjnej części Wilanowa, gdzie dominują nowe apartamentowce, restauracje, kawiarnie. Blisko znajdują się liczne sklepy (Lidl, Biedronka, Żabka), piekarnie, apteki, banki, a także szkoły i przedszkola - zarówno publiczne, jak i międzynarodowe (Willy-Brandt Schule, British Primary School of Wilanów), Pałac Wilanowski, Jezioro Wilanowskie oraz liczne trasy spacerowe i rowerowe.
    Dojazd do centrum zajmuje ok. 15-20 minut, dzięki trasie Wilanowskiej i linii metra

    NIERUCHOMOŚĆ:
    Wnętrza są jasne i ustawne, z wysokimi pomieszczeniami, co nadaje przestronności i komfortu codziennego użytkowania. Standard deweloperski pozwala na indywidualną aranżację wnętrza, a duża działka i ogród zapewniają możliwość stworzenia prywatnej, zielonej przestrzeni.To idealne miejsce dla osób ceniących spokój, dobrą lokalizację oraz życie w dużym mieście

    OPIS BUDYNKU:
    - Powierzchnia około 188,24 m²
    - Zabudowa bliźniacza
    - Trzy kondygnacje
    - Budynek jest oddany w standardzie deweloperskim
    - Ściany wykończone gładzią gipsową
    - Wylewki cementowe - przygotowane pod montaż dowolnego rodzaju podłóg.
    - Rozprowadzone instalacje elektryczne i hydrauliczne - gotowe do podłączenia urządzeń i armatury.
    - Wysokiej jakości stolarkę okienną i drzwiową - zapewnia dobrą izolację i trwałość.


    ROZKŁAD POMIESZCZEŃ:
    Hol wejściowy - 8,42 m²
    Toaleta - 2,51 m²
    Spiżarnia - 2,72 m²
    Pomieszczenie techniczne - 3,49 m²
    Salon z aneksem kuchennym - 38,10 m²
    Garaż IMP - 31,86 m²
    Komunikacja - 12,17 m²
    Sypialnia - 14,66 m²
    Garderoba - 6,39 m²
    Łazienka - 4,24 m²
    Sypialnia - 13,59 m²
    Łazienka - 3,42 m²
    Pralnia - 2,34 m²
    Łazienka - 3,83 m²
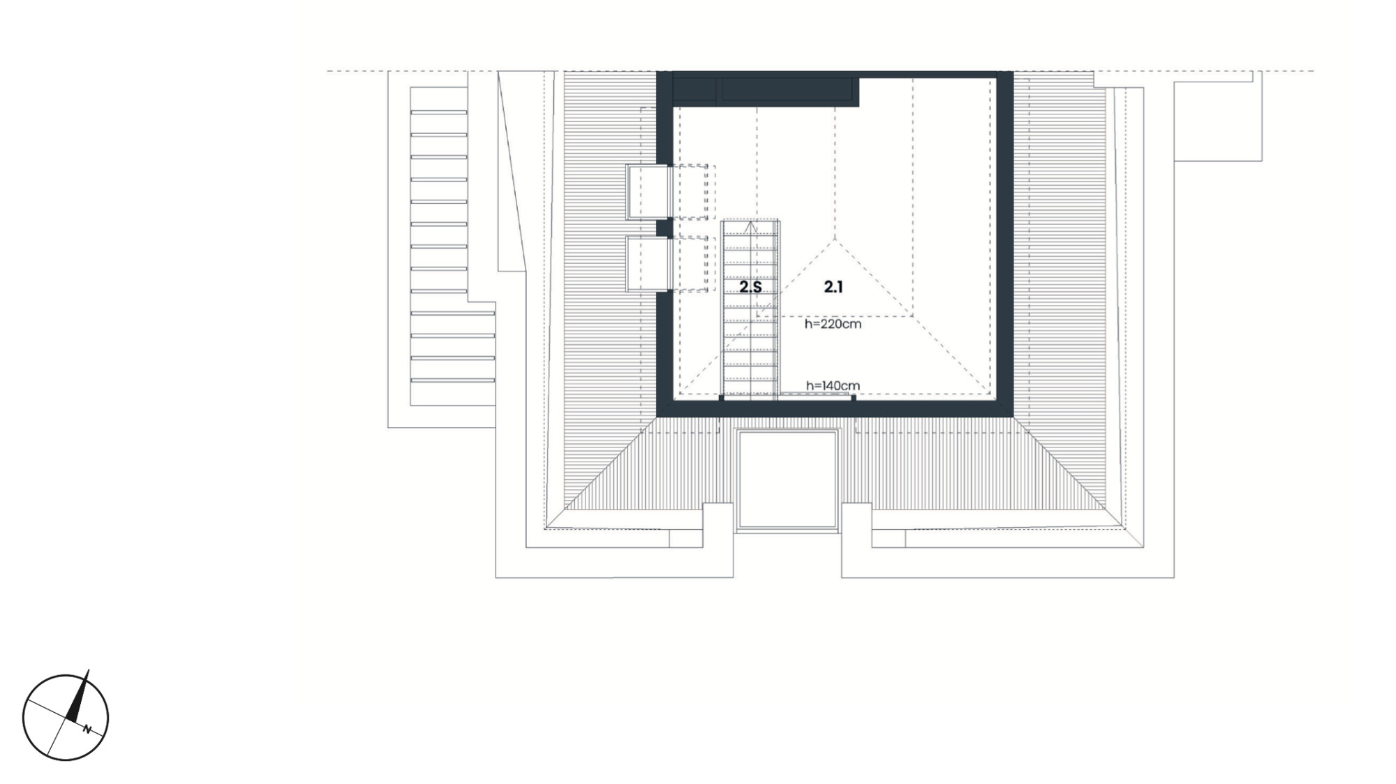
    Poddasze - 18,55 m²
    schody wewnętrzne 1.S - 4,64 m²
    schody wewnętrzne 2.S - 3,78 m²
    Dodatkowe elementy zewnętrzne:
    Taras - 9,64 m²
    Podcień - 2,53 m²
    Wiata śmietnikowa - 1,92 m²
    Balkon 1.A - 3,36 m²
    Balkon 1.B - 2,12 m²
    Loggia 1.C - 3,94 m²
    Ogród 1 (strefa prywatna) - 345,94 m²
    Ogród 2 (strefa wejściowa) - 74,49 m²
    Teren łącznie: 534,65 m²

    INFORMACJE DODATKOWE:
    - Garaż
    - Ogród
    - Teren zamknięty i strzeżony
    - Wywóz śmieci realizowany meleksem

    Posiadamy więcej ofert w tej Lokalizacji
    Zapraszam do kontaktu +48 780 741 333
    -----

    Jeżeli poszukują Państwo więcej podobnych ofert, zapraszamy do współpracy z naszym biurem.

    Treść niniejszego ogłoszenia ma charakter informacyjny i nie stanowi oferty handlowej w rozumieniu Kodeksu Cywilnego.
    Zawarte w ogłoszeniu informacje pochodzą przede wszystkim z oświadczeń właściciela nieruchomości. Nasz zespół dokłada wszelkich starań, aby wszelkie informacje były rzetelnie i sprawdzone.

    Przy obsłudze rynku pierwotnego jako biuro nieruchomości nie pobieramy wynagrodzenie za usługę pośrednictwa.
    LOKALIZACJA:
    Mieszkanie leży w reprezentacyjnej części Wilanowa, gdzie dominują nowe apartamentowce, restauracje, kawiarnie. Blisko znajdują się liczne sklepy (Lidl, Biedronka, Żabka), piekarnie, apteki, banki, a także szkoły i przedszkola - zarówno publiczne, jak i międzynarodowe (Willy-Brandt Schule, British Primary School of Wilanów), Pałac Wilanowski, Jezioro Wilanowskie oraz liczne trasy spacerowe i rowerowe.
    Dojazd do centrum zajmuje ok. 15-20 minut, dzięki trasie Wilanowskiej i linii metra

    NIERUCHOMOŚĆ:
    Wnętrza są jasne i ustawne, z wysokimi pomieszczeniami, co nadaje przestronności i komfortu codziennego użytkowania. Standard deweloperski pozwala na indywidualną aranżację wnętrza, a duża działka i ogród zapewniają możliwość stworzenia prywatnej, zielonej przestrzeni.To idealne miejsce dla osób ceniących spokój, dobrą lokalizację oraz życie w dużym mieście

    OPIS BUDYNKU:
    - Powierzchnia około 188,24 m²
    - Zabudowa bliźniacza
    - Trzy kondygnacje
    - Budynek jest oddany w standardzie deweloperskim
    - Ściany wykończone gładzią gipsową
    - Wylewki cementowe - przygotowane pod montaż dowolnego rodzaju podłóg.
    - Rozprowadzone instalacje elektryczne i hydrauliczne - gotowe do podłączenia urządzeń i armatury.
    - Wysokiej jakości stolarkę okienną i drzwiową - zapewnia dobrą izolację i trwałość.


    ROZKŁAD POMIESZCZEŃ:
    Hol wejściowy - 8,42 m²
    Toaleta - 2,51 m²
    Spiżarnia - 2,72 m²
    Pomieszczenie techniczne - 3,49 m²
    Salon z aneksem kuchennym - 38,10 m²
    Garaż IMP - 31,86 m²
    Komunikacja - 12,17 m²
    Sypialnia - 14,66 m²
    Garderoba - 6,39 m²
    Łazienka - 4,24 m²
    Sypialnia - 13,59 m²
    Łazienka - 3,42 m²
    Pralnia - 2,34 m²
    Łazienka - 3,83 m²
    Poddasze - 18,55 m²
    schody wewnętrzne 1.S - 4,64 m²
    schody wewnętrzne 2.S - 3,78 m²
    Dodatkowe elementy zewnętrzne:
    Taras - 9,64 m²
    Podcień - 2,53 m²
    Wiata śmietnikowa - 1,92 m²
    Balkon 1.A - 3,36 m²
    Balkon 1.B - 2,12 m²
    Loggia 1.C - 3,94 m²
    Ogród 1 (strefa prywatna) - 345,94 m²
    Ogród 2 (strefa wejściowa) - 74,49 m²
    Teren łącznie: 534,65 m²

    INFORMACJE DODATKOWE:
    - Garaż
    - Ogród
    - Teren zamknięty i strzeżony
    - Wywóz śmieci realizowany meleksem

    Posiadamy więcej ofert w tej Lokalizacji
    Zapraszam do kontaktu +48 780 741 333
    -----

    Jeżeli poszukują Państwo więcej podobnych ofert, zapraszamy do współpracy z naszym biurem.

    Treść niniejszego ogłoszenia ma charakter informacyjny i nie stanowi oferty handlowej w rozumieniu Kodeksu Cywilnego.
    Zawarte w ogłoszeniu informacje pochodzą przede wszystkim z oświadczeń właściciela nieruchomości. Nasz zespół dokłada wszelkich starań, aby wszelkie informacje były rzetelnie i sprawdzone.

    Przy obsłudze rynku pierwotnego jako biuro nieruchomości nie pobieramy wynagrodzenie za usługę pośrednictwa.
    rozwiń
    LOKALIZACJA

    Dorota Nowicka

    Doradca ds. Nieruchomości

    d.nowicka@viaestate.pl

    tel. 780 741 333

    Masz pytanie?





    Wyrażam zgodę na przetwarzanie danych osobowych w celach marketingowych przez firmę VIA Sp. z o.o., ul. Giewont 37, 02-829 Warszawa i zapoznałem się z polityką prywatności.

    PODOBNE OFERTY

    • Parterowy nowoczesny dom w Konstancinie I 305m
    • Klasyczny dom wolnostojący Kabaty,

    DODATKOWE INFORMACJE

    Numer oferty:
    VIA125037
    Powierzchnia użytkowa:
    188㎡
    Powierzchnia działki:
    535㎡
    Liczba pokoi:
    4
    Liczba sypialni:
    3
    Liczba łazienek:
    3
    Rodzaj oferty:
    Sprzedaż
    Cena:
    4 600 000 PLN
    Cena za ㎡:
    24 468 PLN

    LOKALIZACJA