171㎡
    329㎡
    5
    4
    2
    dom
    na sprzedaż
    2 640 000 PLN
    15 439 PLN / ㎡
    dom
    na sprzedaż
    2 640 000 PLN
    15 439 PLN / ㎡
    VIA289583
    2027
    171㎡
    5
    4
    2

    Warszawa Wilanów

    Luksusowy dom w prestiżowej lokalizacji


    Luksusowy dom w prestiżowej lokalizacji

    LOKALIZACJA
    Mieszkanie leży w reprezentacyjnej części Wilanowa, gdzie dominują nowe apartamentowce, restauracje, kawiarnie. Blisko znajdują się liczne sklepy (Lidl, Biedronka, Żabka), piekarnie, apteki, banki, a także szkoły i przedszkola - zarówno publiczne, jak i międzynarodowe (Willy-Brandt Schule, British Primary School of Wilanów), Pałac Wilanowski, Jezioro Wilanowskie oraz liczne trasy spacerowe i rowerowe.
    Dojazd do centrum zajmuje ok. 15-20 minut, dzięki trasie Wilanowskiej i linii metra

    NIERUCHOMOŚĆ
    Wnętrza są jasne i ustawne, z wysokimi pomieszczeniami, co nadaje przestronności i komfortu codziennego użytkowania. Standard deweloperski pozwala na indywidualną aranżację wnętrza, a duża działka i ogród zapewniają możliwość stworzenia prywatnej, zielonej przestrzeni.To idealne miejsce dla osób ceniących spokój, dobrą lokalizację oraz życie w dużym mieście

    OPIS BUDYNKU
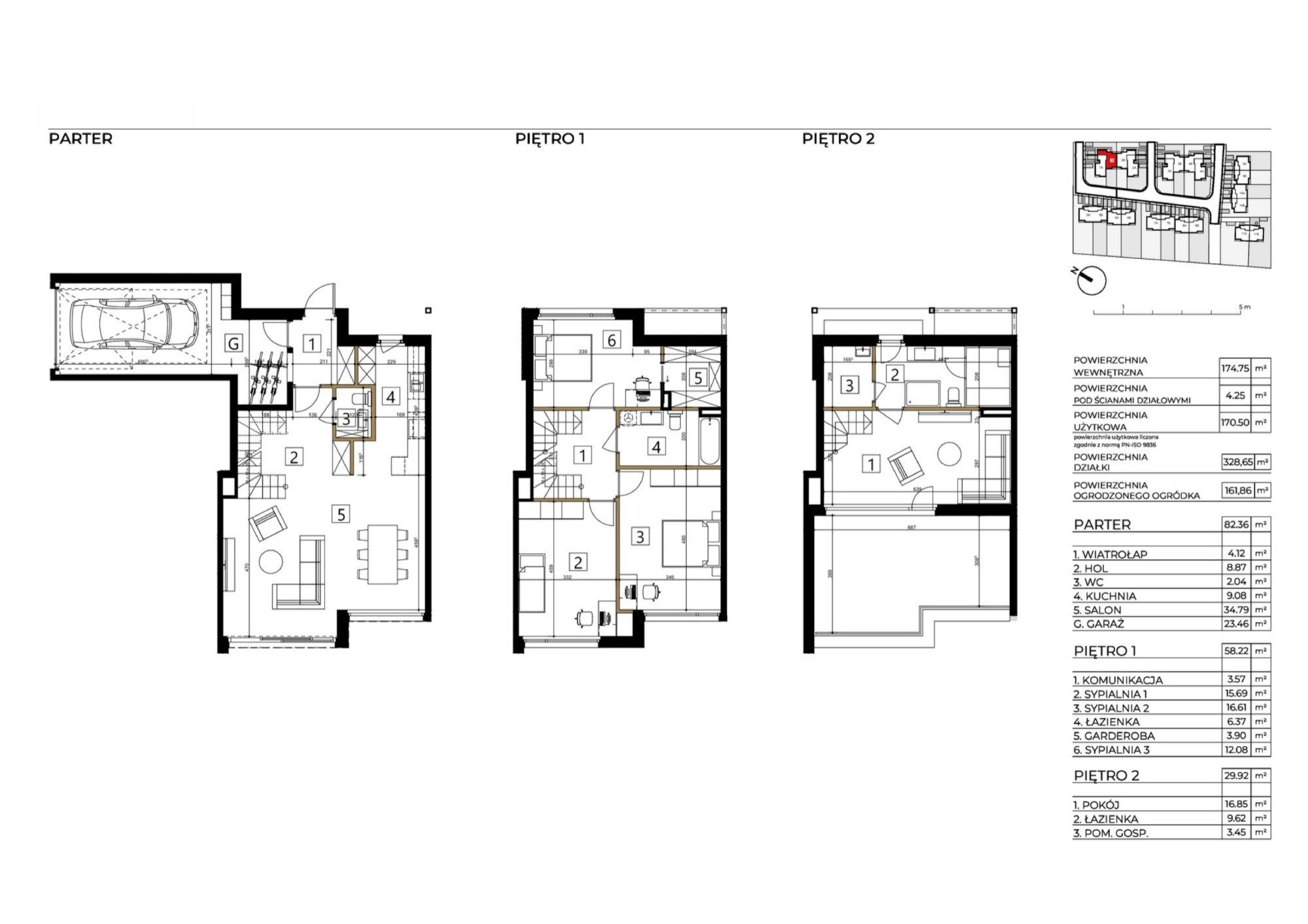
    - Powierzchnia około 170,50 m2
    - Zabudowa bliźniacza
    - Trzy kondygnacje
    - Budynek jest oddany w standardzie deweloperskim
    - Ściany wykończone gładzią gipsową
    - Wylewki cementowe - przygotowane pod montaż dowolnego rodzaju podłóg.
    - Rozprowadzone instalacje elektryczne i hydrauliczne - gotowe do podłączenia urządzeń i armatury.
    - Wysokiej jakości stolarkę okienną i drzwiową - zapewnia dobrą izolację i trwałość.
    - Ogrzewanie - gazowe

    ROZKŁAD POMIESZCZEŃ:
    Parter
    - Salon 34,79 m2
    - Kuchnia 9,08 m2
    - Toaleta 2,04 m2
    - Wiatrołap 4,12 m2
    - Hol 8,87 m2
    - Garaż 23,46 m2

    I Piętro
    - 3 Sypialnie 15,69 m2, 16,61 m2, 12,08 m2
    - Łazienka 6,37 m2
    - Garderoba 3,90 m2
    - Komunikacja  3,57 m2

    II Piętro
    - Pokój
    - Łazienka 
    - Pomieszczenie gospodarcze

    INFORMACJE DODATKOWE
    - Garaż 
    - Kotłownia gazowa
    - Teren zamknięty

    Posiadamy więcej ofert w tej Lokalizacji
    Zapraszam do kontaktu +48 780 741 333
    -----
    Luxury House in a Prestigious Location

    LOCATION
    The property is situated in a prestigious part of Wilanów — one of Warsaw’s most desirable districts, known for its elegant new apartment buildings, restaurants, and cafés. Nearby you will find numerous shops (Lidl, Biedronka, Żabka), bakeries, pharmacies, banks, as well as schools and kindergartens — both public and international (Willy-Brandt Schule, British Primary School of Wilanów).
    The famous Wilanów Palace, Wilanów Lake, and many walking and cycling paths are also close by.
    The city center is easily accessible — approximately 20-25 minutes by car, thanks to Wilanowska Route and subway

    PROPERTY
    The interiors are bright and functional, with high ceilings that provide a sense of spaciousness and everyday comfort. The developer’s standard finish allows for individual arrangement and personalization of the space. The large plot and private garden create the perfect opportunity to design your own green retreat in the city.
    This is an ideal home for those who value tranquility, an excellent location, and the comfort of living in a major city.

    BUILDING DESCRIPTION
    Total area: approx. 170.50 m²
    Semi-detached building
    Three storeys
    Delivered in developer’s standard
    Walls finished with gypsum plaster
    Cement screed floors - ready for installation of any flooring type
    Electrical and plumbing installations fully distributed - ready for connection of appliances and fittings
    High-quality window and door joinery ensuring durability and good insulation
    Heating: gas system

    ROOM LAYOUT:
    Ground Floor
    Living room - 34.79 m²
    Kitchen - 9.08 m²
    Toilet - 2.04 m²
    Vestibule - 4.12 m²
    Hall - 8.87 m²
    Garage - 23.46 m²
    First Floor
    3 Bedrooms - 15.69 m², 16.61 m², 12.08 m²
    Bathroom - 6.37 m²
    Walk-in closet - 3.90 m²
    Hallway - 3.57 m²
    Second Floor
    Room
    Bathroom
    Utility room

    ADDITIONAL INFORMATION
    Garage
    Gas boiler room
    Gated property

    We have more listings available in this location.
    For more information, please contact: +48 780 741 333


    Jeżeli poszukują Państwo więcej podobnych ofert, zapraszamy do współpracy z naszym biurem.

    Treść niniejszego ogłoszenia ma charakter informacyjny i nie stanowi oferty handlowej w rozumieniu Kodeksu Cywilnego.
    Zawarte w ogłoszeniu informacje pochodzą przede wszystkim z oświadczeń właściciela nieruchomości. Nasz zespół dokłada wszelkich starań, aby wszelkie informacje były rzetelnie i sprawdzone.

    Przy obsłudze rynku pierwotnego jako biuro nieruchomości nie pobieramy wynagrodzenie za usługę pośrednictwa.

    Luksusowy dom w prestiżowej lokalizacji

    LOKALIZACJA
    Mieszkanie leży w reprezentacyjnej części Wilanowa, gdzie dominują nowe apartamentowce, restauracje, kawiarnie. Blisko znajdują się liczne sklepy (Lidl, Biedronka, Żabka), piekarnie, apteki, banki, a także szkoły i przedszkola - zarówno publiczne, jak i międzynarodowe (Willy-Brandt Schule, British Primary School of Wilanów), Pałac Wilanowski, Jezioro Wilanowskie oraz liczne trasy spacerowe i rowerowe.
    Dojazd do centrum zajmuje ok. 15-20 minut, dzięki trasie Wilanowskiej i linii metra

    NIERUCHOMOŚĆ
    Wnętrza są jasne i ustawne, z wysokimi pomieszczeniami, co nadaje przestronności i komfortu codziennego użytkowania. Standard deweloperski pozwala na indywidualną aranżację wnętrza, a duża działka i ogród zapewniają możliwość stworzenia prywatnej, zielonej przestrzeni.To idealne miejsce dla osób ceniących spokój, dobrą lokalizację oraz życie w dużym mieście

    OPIS BUDYNKU
    - Powierzchnia około 170,50 m2
    - Zabudowa bliźniacza
    - Trzy kondygnacje
    - Budynek jest oddany w standardzie deweloperskim
    - Ściany wykończone gładzią gipsową
    - Wylewki cementowe - przygotowane pod montaż dowolnego rodzaju podłóg.
    - Rozprowadzone instalacje elektryczne i hydrauliczne - gotowe do podłączenia urządzeń i armatury.
    - Wysokiej jakości stolarkę okienną i drzwiową - zapewnia dobrą izolację i trwałość.
    - Ogrzewanie - gazowe

    ROZKŁAD POMIESZCZEŃ:
    Parter
    - Salon 34,79 m2
    - Kuchnia 9,08 m2
    - Toaleta 2,04 m2
    - Wiatrołap 4,12 m2
    - Hol 8,87 m2
    - Garaż 23,46 m2

    I Piętro
    - 3 Sypialnie 15,69 m2, 16,61 m2, 12,08 m2
    - Łazienka 6,37 m2
    - Garderoba 3,90 m2
    - Komunikacja  3,57 m2

    II Piętro
    - Pokój
    - Łazienka 
    - Pomieszczenie gospodarcze

    INFORMACJE DODATKOWE
    - Garaż 
    - Kotłownia gazowa
    - Teren zamknięty

    Posiadamy więcej ofert w tej Lokalizacji
    Zapraszam do kontaktu +48 780 741 333
    -----
    Luxury House in a Prestigious Location

    LOCATION
    The property is situated in a prestigious part of Wilanów — one of Warsaw’s most desirable districts, known for its elegant new apartment buildings, restaurants, and cafés. Nearby you will find numerous shops (Lidl, Biedronka, Żabka), bakeries, pharmacies, banks, as well as schools and kindergartens — both public and international (Willy-Brandt Schule, British Primary School of Wilanów).
    The famous Wilanów Palace, Wilanów Lake, and many walking and cycling paths are also close by.
    The city center is easily accessible — approximately 20-25 minutes by car, thanks to Wilanowska Route and subway

    PROPERTY
    The interiors are bright and functional, with high ceilings that provide a sense of spaciousness and everyday comfort. The developer’s standard finish allows for individual arrangement and personalization of the space. The large plot and private garden create the perfect opportunity to design your own green retreat in the city.
    This is an ideal home for those who value tranquility, an excellent location, and the comfort of living in a major city.

    BUILDING DESCRIPTION
    Total area: approx. 170.50 m²
    Semi-detached building
    Three storeys
    Delivered in developer’s standard
    Walls finished with gypsum plaster
    Cement screed floors - ready for installation of any flooring type
    Electrical and plumbing installations fully distributed - ready for connection of appliances and fittings
    High-quality window and door joinery ensuring durability and good insulation
    Heating: gas system

    ROOM LAYOUT:
    Ground Floor
    Living room - 34.79 m²
    Kitchen - 9.08 m²
    Toilet - 2.04 m²
    Vestibule - 4.12 m²
    Hall - 8.87 m²
    Garage - 23.46 m²
    First Floor
    3 Bedrooms - 15.69 m², 16.61 m², 12.08 m²
    Bathroom - 6.37 m²
    Walk-in closet - 3.90 m²
    Hallway - 3.57 m²
    Second Floor
    Room
    Bathroom
    Utility room

    ADDITIONAL INFORMATION
    Garage
    Gas boiler room
    Gated property

    We have more listings available in this location.
    For more information, please contact: +48 780 741 333


    Jeżeli poszukują Państwo więcej podobnych ofert, zapraszamy do współpracy z naszym biurem.

    Treść niniejszego ogłoszenia ma charakter informacyjny i nie stanowi oferty handlowej w rozumieniu Kodeksu Cywilnego.
    Zawarte w ogłoszeniu informacje pochodzą przede wszystkim z oświadczeń właściciela nieruchomości. Nasz zespół dokłada wszelkich starań, aby wszelkie informacje były rzetelnie i sprawdzone.

    Przy obsłudze rynku pierwotnego jako biuro nieruchomości nie pobieramy wynagrodzenie za usługę pośrednictwa.
    rozwiń
    LOKALIZACJA

    Dorota Nowicka

    Doradca ds. Nieruchomości

    d.nowicka@viaestate.pl

    tel. 780 741 333

    Masz pytanie?





    Wyrażam zgodę na przetwarzanie danych osobowych w celach marketingowych przez firmę VIA Sp. z o.o., ul. Giewont 37, 02-829 Warszawa i zapoznałem się z polityką prywatności.

    PODOBNE OFERTY

    • Hotel pracowniczy
    • Nowoczesny segment w Warszawie
    • Nowoczesny dom w cenie mieszkania

    DODATKOWE INFORMACJE

    Numer oferty:
    VIA289583
    Powierzchnia użytkowa:
    171㎡
    Powierzchnia działki:
    329㎡
    Rok budowy:
    2027
    Liczba pokoi:
    5
    Liczba sypialni:
    4
    Liczba łazienek:
    2
    Rodzaj oferty:
    Sprzedaż
    Cena:
    2 640 000 PLN
    Cena za ㎡:
    15 439 PLN

    LOKALIZACJA