116㎡
    155㎡
    5
    4
    2
    dom
    na sprzedaż
    1 190 000 PLN
    10 259 PLN / ㎡
    dom
    na sprzedaż
    1 190 000 PLN
    10 259 PLN / ㎡
    VIA360986
    2025
    116㎡
    5
    4
    2

    Raszyn

    Nowoczesny dom w spokojnej okolicy

    Nowoczesny dom w spokojnej okolicy

    LOKALIZACJA
    Dom położony jest w spokojnej części Raszyna, łącząc wygodę życia pod miastem z szybkim dostępem do Warszawy. Okolica charakteryzuje się kameralną zabudową, przyjazną atmosferą oraz łatwym dostępem do terenów rekreacyjnych i usług codziennego użytku. To idealne miejsce dla osób ceniących komfort, spokój i bliskość natury, przy zachowaniu dobrego połączenia z centrum miasta. Dojazd do centrum Warszawy zajmuje około 20 minut.

    NIERUCHOMOŚĆ
    Wnętrza są jasne i ustawne, z wysokimi pomieszczeniami (2,70 m), co nadaje przestronności i komfortu codziennego użytkowania. Standard deweloperski pozwala na indywidualną aranżację wnętrza, a duża działka i ogród zapewniają możliwość stworzenia prywatnej, zielonej przestrzeni.To idealne miejsce dla osób ceniących spokój, kameralną atmosferę i bliskość natury, przy zachowaniu wygodnego dostępu do Warszawy.

    OPIS BUDYNKU
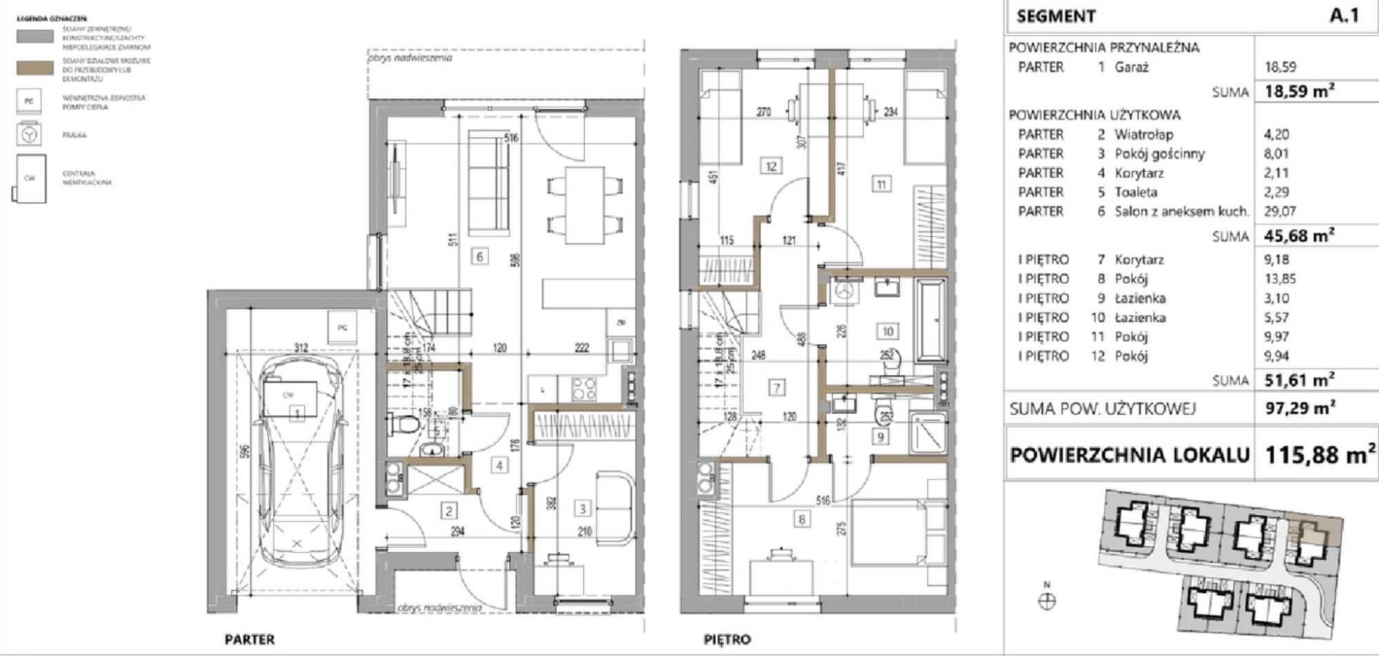
    - Powierzchnia 115,88 m2
    - Zabudowa bliźniacza
    - Dwie kondygnacje
    - Budynek w standardzie deweloperskim
    - Ściany wykończone gładzią gipsową
    - Wylewki cementowe - przygotowane pod montaż dowolnego rodzaju podłóg.
    - Rozprowadzone instalacje elektryczne i hydrauliczne - gotowe do podłączenia urządzeń i armatury.
    - Wysokiej jakości stolarkę okienną i drzwiową - zapewnia dobrą izolację i trwałość.
    - Ogrzewanie - CO własne
    -Termin oddania od IV kwartał 2025

    ROZKŁAD POMIESZCZEŃ:
    Parter
    - Salon z jadalnią i aneksem kuchennym 29,07 m2
    - Pokój 8,01 m2
    - Toaleta 2,29 m2
    - Wiatrołap 4,20 m2
    - Korytarz 2,11 m2
    Piętro
    - 3 Sypialnie 13,85 m2, 9,97 m2, 9,94 m2
    - 2 Łazienki 3,10 m2, 5,57m2
    - Korytarz 12,35 m2

    INFORMACJE DODATKOWE
    - Domofon
    - Garaż 
    - Miejsce postojowe
    - Teren zamknięty
    - Drzwi antywłamaniowe

    Posiadamy więcej ofert w tej Lokalizacji
    Zapraszam do kontaktu +48 780 741 333
    -----
    Modern House in a Quiet Area

    LOCATION
    The house is located in a peaceful part of Raszyn, combining the convenience of suburban living with quick access to Warsaw. The area features low-density housing, a friendly atmosphere, and easy access to recreational areas and everyday services. It is an ideal place for those who value comfort, tranquility, and proximity to nature while maintaining good connectivity to the city center. The drive to central Warsaw takes approximately 20 minutes.

    PROPERTY
    The interiors are bright and functional, with high ceilings (2.70 m) that provide a sense of spaciousness and everyday comfort. The developer’s standard allows for individual interior customization, and the large plot with a garden offers the possibility of creating a private, green space. It is perfect for those who appreciate peace, a cozy atmosphere, and closeness to nature, while still having convenient access to Warsaw.

    BUILDING DESCRIPTION
    Area: 115.88 m²
    Semi-detached house
    Two floors
    Developer’s standard
    Walls finished with gypsum plaster
    Cement screeds - ready for installation of any type of flooring
    Electrical and plumbing installations in place - ready for appliance and fixture connections
    High-quality window and door joinery - ensures good insulation and durability
    Heating - independent central heating

    FLOOR PLAN:
    Ground Floor
    Living room with dining area and kitchenette: 29.07 m²
    Room: 8.01 m²
    Toilet: 2.29 m²
    Vestibule: 4.20 m²
    Hallway: 2.11 m²
    First Floor
    3 Bedrooms: 13.85 m², 9.97 m², 9.94 m²
    2 Bathrooms: 3.10 m², 5.57 m²
    Hallway: 12.35 m²

    ADDITIONAL INFORMATION
    Intercom
    Garage
    Parking space
    Gated area
    Security door

    We have more offers in this location.
    Contact us at +48 780 741 333

    Jeżeli poszukują Państwo więcej podobnych ofert, zapraszamy do współpracy z naszym biurem.

    Treść niniejszego ogłoszenia ma charakter informacyjny i nie stanowi oferty handlowej w rozumieniu Kodeksu Cywilnego.
    Zawarte w ogłoszeniu informacje pochodzą przede wszystkim z oświadczeń właściciela nieruchomości. Nasz zespół dokłada wszelkich starań, aby wszelkie informacje były rzetelnie i sprawdzone.

    Przy obsłudze rynku pierwotnego jako biuro nieruchomości nie pobieramy wynagrodzenie za usługę pośrednictwa.
    Nowoczesny dom w spokojnej okolicy

    LOKALIZACJA
    Dom położony jest w spokojnej części Raszyna, łącząc wygodę życia pod miastem z szybkim dostępem do Warszawy. Okolica charakteryzuje się kameralną zabudową, przyjazną atmosferą oraz łatwym dostępem do terenów rekreacyjnych i usług codziennego użytku. To idealne miejsce dla osób ceniących komfort, spokój i bliskość natury, przy zachowaniu dobrego połączenia z centrum miasta. Dojazd do centrum Warszawy zajmuje około 20 minut.

    NIERUCHOMOŚĆ
    Wnętrza są jasne i ustawne, z wysokimi pomieszczeniami (2,70 m), co nadaje przestronności i komfortu codziennego użytkowania. Standard deweloperski pozwala na indywidualną aranżację wnętrza, a duża działka i ogród zapewniają możliwość stworzenia prywatnej, zielonej przestrzeni.To idealne miejsce dla osób ceniących spokój, kameralną atmosferę i bliskość natury, przy zachowaniu wygodnego dostępu do Warszawy.

    OPIS BUDYNKU
    - Powierzchnia 115,88 m2
    - Zabudowa bliźniacza
    - Dwie kondygnacje
    - Budynek w standardzie deweloperskim
    - Ściany wykończone gładzią gipsową
    - Wylewki cementowe - przygotowane pod montaż dowolnego rodzaju podłóg.
    - Rozprowadzone instalacje elektryczne i hydrauliczne - gotowe do podłączenia urządzeń i armatury.
    - Wysokiej jakości stolarkę okienną i drzwiową - zapewnia dobrą izolację i trwałość.
    - Ogrzewanie - CO własne
    -Termin oddania od IV kwartał 2025

    ROZKŁAD POMIESZCZEŃ:
    Parter
    - Salon z jadalnią i aneksem kuchennym 29,07 m2
    - Pokój 8,01 m2
    - Toaleta 2,29 m2
    - Wiatrołap 4,20 m2
    - Korytarz 2,11 m2
    Piętro
    - 3 Sypialnie 13,85 m2, 9,97 m2, 9,94 m2
    - 2 Łazienki 3,10 m2, 5,57m2
    - Korytarz 12,35 m2

    INFORMACJE DODATKOWE
    - Domofon
    - Garaż 
    - Miejsce postojowe
    - Teren zamknięty
    - Drzwi antywłamaniowe

    Posiadamy więcej ofert w tej Lokalizacji
    Zapraszam do kontaktu +48 780 741 333
    -----
    Modern House in a Quiet Area

    LOCATION
    The house is located in a peaceful part of Raszyn, combining the convenience of suburban living with quick access to Warsaw. The area features low-density housing, a friendly atmosphere, and easy access to recreational areas and everyday services. It is an ideal place for those who value comfort, tranquility, and proximity to nature while maintaining good connectivity to the city center. The drive to central Warsaw takes approximately 20 minutes.

    PROPERTY
    The interiors are bright and functional, with high ceilings (2.70 m) that provide a sense of spaciousness and everyday comfort. The developer’s standard allows for individual interior customization, and the large plot with a garden offers the possibility of creating a private, green space. It is perfect for those who appreciate peace, a cozy atmosphere, and closeness to nature, while still having convenient access to Warsaw.

    BUILDING DESCRIPTION
    Area: 115.88 m²
    Semi-detached house
    Two floors
    Developer’s standard
    Walls finished with gypsum plaster
    Cement screeds - ready for installation of any type of flooring
    Electrical and plumbing installations in place - ready for appliance and fixture connections
    High-quality window and door joinery - ensures good insulation and durability
    Heating - independent central heating

    FLOOR PLAN:
    Ground Floor
    Living room with dining area and kitchenette: 29.07 m²
    Room: 8.01 m²
    Toilet: 2.29 m²
    Vestibule: 4.20 m²
    Hallway: 2.11 m²
    First Floor
    3 Bedrooms: 13.85 m², 9.97 m², 9.94 m²
    2 Bathrooms: 3.10 m², 5.57 m²
    Hallway: 12.35 m²

    ADDITIONAL INFORMATION
    Intercom
    Garage
    Parking space
    Gated area
    Security door

    We have more offers in this location.
    Contact us at +48 780 741 333

    Jeżeli poszukują Państwo więcej podobnych ofert, zapraszamy do współpracy z naszym biurem.

    Treść niniejszego ogłoszenia ma charakter informacyjny i nie stanowi oferty handlowej w rozumieniu Kodeksu Cywilnego.
    Zawarte w ogłoszeniu informacje pochodzą przede wszystkim z oświadczeń właściciela nieruchomości. Nasz zespół dokłada wszelkich starań, aby wszelkie informacje były rzetelnie i sprawdzone.

    Przy obsłudze rynku pierwotnego jako biuro nieruchomości nie pobieramy wynagrodzenie za usługę pośrednictwa.
    rozwiń
    LOKALIZACJA

    Dorota Nowicka

    Doradca ds. Nieruchomości

    d.nowicka@viaestate.pl

    tel. 780 741 333

    Masz pytanie?





    Wyrażam zgodę na przetwarzanie danych osobowych w celach marketingowych przez firmę VIA Sp. z o.o., ul. Giewont 37, 02-829 Warszawa i zapoznałem się z polityką prywatności.

    PODOBNE OFERTY

    • Segment środkowy Wawer, 5 pokoi
    • Nowoczesny dom w spokojnej okolicy
    • Przestronny segment z poddaszem

    DODATKOWE INFORMACJE

    Numer oferty:
    VIA360986
    Powierzchnia użytkowa:
    116㎡
    Powierzchnia działki:
    155㎡
    Rok budowy:
    2025
    Liczba pokoi:
    5
    Liczba sypialni:
    4
    Liczba łazienek:
    2
    Rodzaj oferty:
    Sprzedaż
    Cena:
    1 190 000 PLN
    Cena za ㎡:
    10 259 PLN

    LOKALIZACJA