65㎡
    2
    1
    1
    mieszkanie
    na sprzedaż
    1 150 000 PLN
    17 692 PLN / ㎡
    mieszkanie
    na sprzedaż
    1 150 000 PLN
    17 692 PLN / ㎡
    VIA126860
    2010
    65㎡
    2
    1
    1

    Warszawa Wilanów Błonia Wilanowskie

    Do własnej aranżacji.

    Jasne, dwupokojowe mieszkanie na Wilanowie - idealne do własnej aranżacji

    Przestrzeń, która zaprasza do stworzenia wymarzonego "domu" w spokojnej i zielonej części Wilanowa.

    LOKALIZACJA
    Nieruchomość położona jest na Błoniach Wilanowskich, w rejonie ulicy Prymasa Augusta Hlonda. To lokalizacja, która łączy prestiż dzielnicy z bliskością natury - w niedalekim sąsiedztwie znajduje się Park w Wilanowie oraz liczne tereny rekreacyjne. Okolica jest w pełni zagospodarowana, oferując mieszkańcom dostęp do sprawdzonych restauracji, sklepów oraz placówek edukacyjnych, co pozwala na wygodne funkcjonowanie bez konieczności opuszczania dzielnicy.

    OPIS NIERUCHOMOŚCI
    Mieszkanie o powierzchni 64,71 m² znajduje się na pierwszym piętrze kameralnego budynku z 2010 roku. Lokal jest w stanie do całkowitego remontu, co stanowi doskonałą bazę dla osób szukających możliwości pełnej personalizacji wnętrza i dostosowania go do własnych potrzeb. Duże przeszklenia oraz funkcjonalny rozkład sprawiają, że wnętrze jest jasne i daje poczucie przestrzeni. Możliwość wykończenia lokalu od podstaw to gwarancja, że każdy detal będzie odpowiadał Państwa estetyce oraz wymaganiom jakościowym.

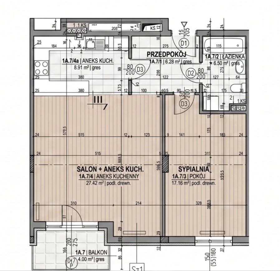
    ROZKŁAD POMIESZCZEŃ
    • Salon (27,42 m²)
    • Sypialnia (17,16 m²)
    • Aneks kuchenny (8,91 m²)
    • Łazienka (5,06 m²)
    • Balkon (4,00 m²)


    DODATKOWE INFORMACJE
    Cena mieszkania: 1 150 000 PLN
    Miejsce postojowe: Klasyczne miejsce w garażu podziemnym, dodatkowo płatne w wysokości 50 000 PLN

    Porozmawiajmy o możliwościach tego wnętrza. Zapraszam do kontaktu w celu umówienia prezentacji.

    ///////////////////////////////////////////////////////////////////////////////////////////////////////////////////////

    Bright, two-room apartment in Wilanów - perfect for your own arrangement

    A space that invites you to create your dream home in a quiet and green part of Wilanów.

    LOCATION
    The property is located in Błonia Wilanowskie, near Prymasa Augusta Hlonda Street. This location combines the district's prestige with proximity to nature - the Wilanów Park and numerous recreational areas are in the immediate vicinity. The area is fully developed, offering residents access to verified restaurants, shops, and educational institutions, allowing for comfortable living without having to leave the district.

    PROPERTY DESCRIPTION
    The apartment with an area of 64.71 m² is located on the first floor of a cozy building from 2010. The premises are in need of a complete renovation, which provides an excellent base for those looking for the possibility of full personalization of the interior and adapting it to their own needs. Large windows and a functional layout make the interior bright and give a sense of space. The possibility of finishing the premises from scratch is a guarantee that every detail will match your aesthetics and quality requirements.

    LAYOUT
    • Living room (27.42 m²)
    • Bedroom (17.16 m²)
    • Kitchenette (8.91 m²)
    • Bathroom (5.06 m²)
    • Balcony (4.00 m²)


    ADDITIONAL INFORMATION:
    • Apartment price: PLN 1,150,000
    • Parking space: Classic space in the underground garage, additionally payable at PLN 50,000


    Let's talk about the possibilities of this interior. I invite you to contact me to arrange a presentation

    Jeżeli poszukują Państwo więcej podobnych ofert, zapraszamy do współpracy z naszym biurem. Treść niniejszego ogłoszenia ma charakter informacyjny i nie stanowi oferty handlowej w rozumieniu Kodeksu Cywilnego.

    Zawarte w ogłoszeniu informacje pochodzą przede wszystkim z oświadczeń właściciela nieruchomości. Nasz zespół dokłada wszelkich starań, aby wszelkie informacje były rzetelnie i sprawdzone.

    Przy obsłudze rynku wtórnego jako biuro nieruchomości pobieramy za usługę pośrednictwa wynagrodzenie w formie prowizji. 
    Jasne, dwupokojowe mieszkanie na Wilanowie - idealne do własnej aranżacji

    Przestrzeń, która zaprasza do stworzenia wymarzonego "domu" w spokojnej i zielonej części Wilanowa.

    LOKALIZACJA
    Nieruchomość położona jest na Błoniach Wilanowskich, w rejonie ulicy Prymasa Augusta Hlonda. To lokalizacja, która łączy prestiż dzielnicy z bliskością natury - w niedalekim sąsiedztwie znajduje się Park w Wilanowie oraz liczne tereny rekreacyjne. Okolica jest w pełni zagospodarowana, oferując mieszkańcom dostęp do sprawdzonych restauracji, sklepów oraz placówek edukacyjnych, co pozwala na wygodne funkcjonowanie bez konieczności opuszczania dzielnicy.

    OPIS NIERUCHOMOŚCI
    Mieszkanie o powierzchni 64,71 m² znajduje się na pierwszym piętrze kameralnego budynku z 2010 roku. Lokal jest w stanie do całkowitego remontu, co stanowi doskonałą bazę dla osób szukających możliwości pełnej personalizacji wnętrza i dostosowania go do własnych potrzeb. Duże przeszklenia oraz funkcjonalny rozkład sprawiają, że wnętrze jest jasne i daje poczucie przestrzeni. Możliwość wykończenia lokalu od podstaw to gwarancja, że każdy detal będzie odpowiadał Państwa estetyce oraz wymaganiom jakościowym.

    ROZKŁAD POMIESZCZEŃ
    • Salon (27,42 m²)
    • Sypialnia (17,16 m²)
    • Aneks kuchenny (8,91 m²)
    • Łazienka (5,06 m²)
    • Balkon (4,00 m²)


    DODATKOWE INFORMACJE
    Cena mieszkania: 1 150 000 PLN
    Miejsce postojowe: Klasyczne miejsce w garażu podziemnym, dodatkowo płatne w wysokości 50 000 PLN

    Porozmawiajmy o możliwościach tego wnętrza. Zapraszam do kontaktu w celu umówienia prezentacji.

    ///////////////////////////////////////////////////////////////////////////////////////////////////////////////////////

    Bright, two-room apartment in Wilanów - perfect for your own arrangement

    A space that invites you to create your dream home in a quiet and green part of Wilanów.

    LOCATION
    The property is located in Błonia Wilanowskie, near Prymasa Augusta Hlonda Street. This location combines the district's prestige with proximity to nature - the Wilanów Park and numerous recreational areas are in the immediate vicinity. The area is fully developed, offering residents access to verified restaurants, shops, and educational institutions, allowing for comfortable living without having to leave the district.

    PROPERTY DESCRIPTION
    The apartment with an area of 64.71 m² is located on the first floor of a cozy building from 2010. The premises are in need of a complete renovation, which provides an excellent base for those looking for the possibility of full personalization of the interior and adapting it to their own needs. Large windows and a functional layout make the interior bright and give a sense of space. The possibility of finishing the premises from scratch is a guarantee that every detail will match your aesthetics and quality requirements.

    LAYOUT
    • Living room (27.42 m²)
    • Bedroom (17.16 m²)
    • Kitchenette (8.91 m²)
    • Bathroom (5.06 m²)
    • Balcony (4.00 m²)


    ADDITIONAL INFORMATION:
    • Apartment price: PLN 1,150,000
    • Parking space: Classic space in the underground garage, additionally payable at PLN 50,000


    Let's talk about the possibilities of this interior. I invite you to contact me to arrange a presentation

    Jeżeli poszukują Państwo więcej podobnych ofert, zapraszamy do współpracy z naszym biurem. Treść niniejszego ogłoszenia ma charakter informacyjny i nie stanowi oferty handlowej w rozumieniu Kodeksu Cywilnego.

    Zawarte w ogłoszeniu informacje pochodzą przede wszystkim z oświadczeń właściciela nieruchomości. Nasz zespół dokłada wszelkich starań, aby wszelkie informacje były rzetelnie i sprawdzone.

    Przy obsłudze rynku wtórnego jako biuro nieruchomości pobieramy za usługę pośrednictwa wynagrodzenie w formie prowizji. 
    rozwiń
    LOKALIZACJA

    Marlena Bączyk

    Co-Founder

    m.baczyk@viaestate.pl

    tel. 695 722 264

    Masz pytanie?





    Wyrażam zgodę na przetwarzanie danych osobowych w celach marketingowych przez firmę VIA Sp. z o.o., ul. Giewont 37, 02-829 Warszawa i zapoznałem się z polityką prywatności.

    PODOBNE OFERTY

    • Przestronne mieszkanie w centrum Targówka
    • Jasne mieszkanie w centrum Targówka
    • Jasne mieszkanie z przestronnym balkonem

    DODATKOWE INFORMACJE

    Numer oferty:
    VIA126860
    Powierzchnia użytkowa:
    65㎡
    Rok budowy:
    2010
    Liczba pokoi:
    2
    Liczba sypialni:
    1
    Liczba łazienek:
    1
    Rodzaj oferty:
    Sprzedaż
    Cena:
    1 150 000 PLN
    Cena za ㎡:
    17 692 PLN

    LOKALIZACJA