60㎡
    3
    2
    1
    mieszkanie
    na sprzedaż
    991 216 PLN
    16 520 PLN / ㎡
    mieszkanie
    na sprzedaż
    991 216 PLN
    16 520 PLN / ㎡
    VIA876297
    2026
    60㎡
    3
    2
    1

    Warszawa Bemowo

    Trzypokojowe mieszkanie przy metrze Chrzanów

    Mieszkanie przy Metrze Chrzanów PROMOCJA - 3% od ceny w ogłoszeniu
    *BEZ PCC* *BEZ PROWIZJI*

    LOKALIZACJA
    Osiedle zlokalizowane jest na warszawskim Bemowie. To nowoczesna, dynamicznie rozwijająca się część miasta, doskonale skomunikowana z centrum Warszawy i innymi dzielnicami.
    W pobliżu znajdują się:
    - przystanki autobusowe i linia metra
    - sklepy, restauracje, punkty usługowe,
    - szkoły, przedszkola i tereny rekreacyjne

    OPIS NIERUCHOMOŚCI
    Lokal został zaprojektowany z myślą o funkcjonalności i komforcie przyszłych mieszkańców, a wysokie pomieszczenia (2,70m) dodają dodatkowej przestrzeni.
    Mieszkanie jest oddane w stanie deweloperskim, co pozwala przyszłemu właścicielowi na aranżację według własnych potrzeb i gustu. Ściany są już wygładzone i pomalowane na biało.

    W standardzie wykończenia:
    - gładzie gipsowe na ścianach,
    - biała farba na ścianach,
    - wylewka cementowa przygotowana pod podłogi,
    - rozprowadzone instalacje elektryczne i hydrauliczne,
    - wysokiej jakości stolarka okienna i drzwiowa,

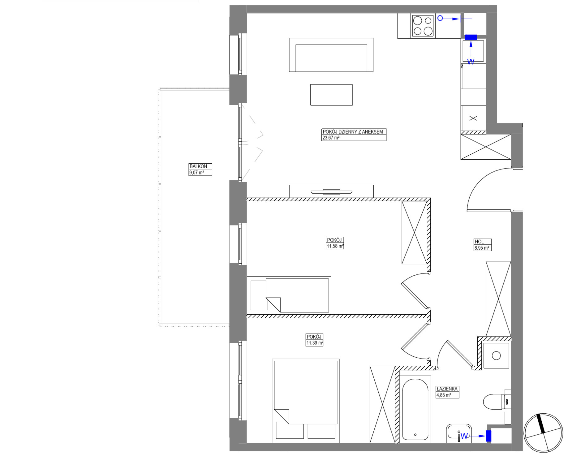
    ROZKŁAD POMIESZCZEŃ
    - pokój dzienny z aneksem 23,67 m2
    - sypialnia 11,58 m2
    - sypialnia 11,39 m2
    - łazienka 4,85 m2
    - hol 8,95 m2
    - balkon 9,07 m2

    BUDYNEK
    Budynek wykonany został z wysokiej jakości materiałów i zaprojektowany z dbałością o detale.
    W standardzie inwestycji znajdują się:
    - cichobieżne windy,
    - całodobowy monitoring,
    - dźwiękoszczelne ściany.

    INFORMACJE DODATKOWE
    - system smart home
    - stacja ładowania sam. elektrycznych
    - CO miejskie
    - miejsce parkingowe w garażu podziemnym 45000 zł
    - komórka lokatorska od 10800 zł

    Posiadamy więcej ofert mieszkań w tej lokalizacji.
    Zapraszam do kontaktu- +48 780-741-333
    -----
    Apartment near Chrzanów Metro - PROMOTION: 3% off the listed price
    *NO PCC TAX* *NO COMMISSION*

    LOCATION
    The residential complex is located in Bemowo, one of Warsaw’s modern and dynamically developing districts. It is very well connected with the city center and other parts of Warsaw.
    Nearby you will find:
    bus stops and a metro line,
    shops, restaurants, and service points,
    schools, kindergartens, and recreational areas.

    PROPERTY DESCRIPTION
    The apartment has been designed with functionality and comfort in mind. High ceilings (2.70 m) provide an added sense of space.
    The unit is delivered in developer standard, allowing the future owner to arrange the interior according to their own needs and taste. The walls are already smoothed and painted white.
    Finishing standard includes:
    gypsum plaster on walls,
    white paint on walls,
    cement screed prepared for flooring,
    electrical and plumbing installations installed,
    high-quality window and door joinery.

    LAYOUT
    living room with kitchenette: 23.67 m²
    bedroom: 11.58 m²
    bedroom: 11.39 m²
    bathroom: 4.85 m²
    hall: 8.95 m²
    balcony: 9.07 m²

    BUILDING
    The building has been constructed using high-quality materials and designed with attention to detail.
    Investment standard includes:
    silent elevators,
    24/7 monitoring,
    soundproof walls.

    ADDITIONAL INFORMATION
    smart home system,
    electric vehicle charging station,
    district heating,
    underground parking space: PLN 45,000,
    storage unit: from PLN 10,800.
    We have more apartments available in this location.
    Feel free to contact me: +48 780 741 333

    Jeżeli poszukują Państwo więcej podobnych ofert, zapraszamy do współpracy z naszym biurem.

    Treść niniejszego ogłoszenia ma charakter informacyjny i nie stanowi oferty handlowej w rozumieniu Kodeksu Cywilnego.
    Zawarte w ogłoszeniu informacje pochodzą przede wszystkim z oświadczeń właściciela nieruchomości. Nasz zespół dokłada wszelkich starań, aby wszelkie informacje były rzetelnie i sprawdzone.

    Przy obsłudze rynku pierwotnego jako biuro nieruchomości nie pobieramy wynagrodzenie za usługę pośrednictwa.
    Mieszkanie przy Metrze Chrzanów PROMOCJA - 3% od ceny w ogłoszeniu
    *BEZ PCC* *BEZ PROWIZJI*

    LOKALIZACJA
    Osiedle zlokalizowane jest na warszawskim Bemowie. To nowoczesna, dynamicznie rozwijająca się część miasta, doskonale skomunikowana z centrum Warszawy i innymi dzielnicami.
    W pobliżu znajdują się:
    - przystanki autobusowe i linia metra
    - sklepy, restauracje, punkty usługowe,
    - szkoły, przedszkola i tereny rekreacyjne

    OPIS NIERUCHOMOŚCI
    Lokal został zaprojektowany z myślą o funkcjonalności i komforcie przyszłych mieszkańców, a wysokie pomieszczenia (2,70m) dodają dodatkowej przestrzeni.
    Mieszkanie jest oddane w stanie deweloperskim, co pozwala przyszłemu właścicielowi na aranżację według własnych potrzeb i gustu. Ściany są już wygładzone i pomalowane na biało.

    W standardzie wykończenia:
    - gładzie gipsowe na ścianach,
    - biała farba na ścianach,
    - wylewka cementowa przygotowana pod podłogi,
    - rozprowadzone instalacje elektryczne i hydrauliczne,
    - wysokiej jakości stolarka okienna i drzwiowa,

    ROZKŁAD POMIESZCZEŃ
    - pokój dzienny z aneksem 23,67 m2
    - sypialnia 11,58 m2
    - sypialnia 11,39 m2
    - łazienka 4,85 m2
    - hol 8,95 m2
    - balkon 9,07 m2

    BUDYNEK
    Budynek wykonany został z wysokiej jakości materiałów i zaprojektowany z dbałością o detale.
    W standardzie inwestycji znajdują się:
    - cichobieżne windy,
    - całodobowy monitoring,
    - dźwiękoszczelne ściany.

    INFORMACJE DODATKOWE
    - system smart home
    - stacja ładowania sam. elektrycznych
    - CO miejskie
    - miejsce parkingowe w garażu podziemnym 45000 zł
    - komórka lokatorska od 10800 zł

    Posiadamy więcej ofert mieszkań w tej lokalizacji.
    Zapraszam do kontaktu- +48 780-741-333
    -----
    Apartment near Chrzanów Metro - PROMOTION: 3% off the listed price
    *NO PCC TAX* *NO COMMISSION*

    LOCATION
    The residential complex is located in Bemowo, one of Warsaw’s modern and dynamically developing districts. It is very well connected with the city center and other parts of Warsaw.
    Nearby you will find:
    bus stops and a metro line,
    shops, restaurants, and service points,
    schools, kindergartens, and recreational areas.

    PROPERTY DESCRIPTION
    The apartment has been designed with functionality and comfort in mind. High ceilings (2.70 m) provide an added sense of space.
    The unit is delivered in developer standard, allowing the future owner to arrange the interior according to their own needs and taste. The walls are already smoothed and painted white.
    Finishing standard includes:
    gypsum plaster on walls,
    white paint on walls,
    cement screed prepared for flooring,
    electrical and plumbing installations installed,
    high-quality window and door joinery.

    LAYOUT
    living room with kitchenette: 23.67 m²
    bedroom: 11.58 m²
    bedroom: 11.39 m²
    bathroom: 4.85 m²
    hall: 8.95 m²
    balcony: 9.07 m²

    BUILDING
    The building has been constructed using high-quality materials and designed with attention to detail.
    Investment standard includes:
    silent elevators,
    24/7 monitoring,
    soundproof walls.

    ADDITIONAL INFORMATION
    smart home system,
    electric vehicle charging station,
    district heating,
    underground parking space: PLN 45,000,
    storage unit: from PLN 10,800.
    We have more apartments available in this location.
    Feel free to contact me: +48 780 741 333

    Jeżeli poszukują Państwo więcej podobnych ofert, zapraszamy do współpracy z naszym biurem.

    Treść niniejszego ogłoszenia ma charakter informacyjny i nie stanowi oferty handlowej w rozumieniu Kodeksu Cywilnego.
    Zawarte w ogłoszeniu informacje pochodzą przede wszystkim z oświadczeń właściciela nieruchomości. Nasz zespół dokłada wszelkich starań, aby wszelkie informacje były rzetelnie i sprawdzone.

    Przy obsłudze rynku pierwotnego jako biuro nieruchomości nie pobieramy wynagrodzenie za usługę pośrednictwa.
    rozwiń
    LOKALIZACJA

    Dorota Nowicka

    Doradca ds. Nieruchomości

    d.nowicka@viaestate.pl

    tel. 780 741 333

    Masz pytanie?





    Wyrażam zgodę na przetwarzanie danych osobowych w celach marketingowych przez firmę VIA Sp. z o.o., ul. Giewont 37, 02-829 Warszawa i zapoznałem się z polityką prywatności.

    PODOBNE OFERTY

    • Jasne mieszkanie w centrum Targówka
    • Segment w zielonej okolicy przy Warszawie
    • Trzypokojowe mieszkanie przy lotnisku

    DODATKOWE INFORMACJE

    Numer oferty:
    VIA876297
    Powierzchnia użytkowa:
    60㎡
    Rok budowy:
    2026
    Liczba pokoi:
    3
    Liczba sypialni:
    2
    Liczba łazienek:
    1
    Rodzaj oferty:
    Sprzedaż
    Cena:
    991 216 PLN
    Cena za ㎡:
    16 520 PLN

    LOKALIZACJA