188㎡
    532㎡
    4
    3
    2
    dom
    na sprzedaż
    4 400 000 PLN
    23 404 PLN / ㎡
    dom
    na sprzedaż
    4 400 000 PLN
    23 404 PLN / ㎡
    VIA212170
    2025
    188㎡
    4
    3
    2

    Warszawa Wilanów

    Nowoczesna willa na zamkniętym osiedlu Wilanów

    Nowoczesna willa na zamkniętym osiedlu Wilanów
    BEZ PCC * BEZ PROWIZJI
    LOKALIZACJA:

    Mieszkanie leży w reprezentacyjnej części Wilanowa, gdzie dominują nowe apartamentowce, restauracje, kawiarnie. Blisko znajdują się liczne sklepy (Lidl, Biedronka, Żabka), piekarnie, apteki, banki, a także szkoły i przedszkola - zarówno publiczne, jak i międzynarodowe (Willy-Brandt Schule, British Primary School of Wilanów), Pałac Wilanowski, Jezioro Wilanowskie oraz liczne trasy spacerowe i rowerowe.
    Dojazd do centrum zajmuje ok. 15-20 minut, dzięki trasie Wilanowskiej i linii metra

    NIERUCHOMOŚĆ:
    Wnętrza są jasne i ustawne, z wysokimi pomieszczeniami, co nadaje przestronności i komfortu codziennego użytkowania. Standard deweloperski pozwala na indywidualną aranżację wnętrza, a duża działka i ogród zapewniają możliwość stworzenia prywatnej, zielonej przestrzeni.To idealne miejsce dla osób ceniących spokój, dobrą lokalizację oraz życie w dużym mieście

    OPIS BUDYNKU:
    - Powierzchnia około 188,24 m²
    - Zabudowa bliźniacza
    - Trzy kondygnacje
    - Budynek jest oddany w standardzie deweloperskim
    - Ściany wykończone gładzią gipsową
    - Wylewki cementowe - przygotowane pod montaż dowolnego rodzaju podłóg.
    - Rozprowadzone instalacje elektryczne i hydrauliczne - gotowe do podłączenia urządzeń i armatury.
    - Wysokiej jakości stolarkę okienną i drzwiową - zapewnia dobrą izolację i trwałość.

    ROZKŁAD POMIESZCZEŃ:
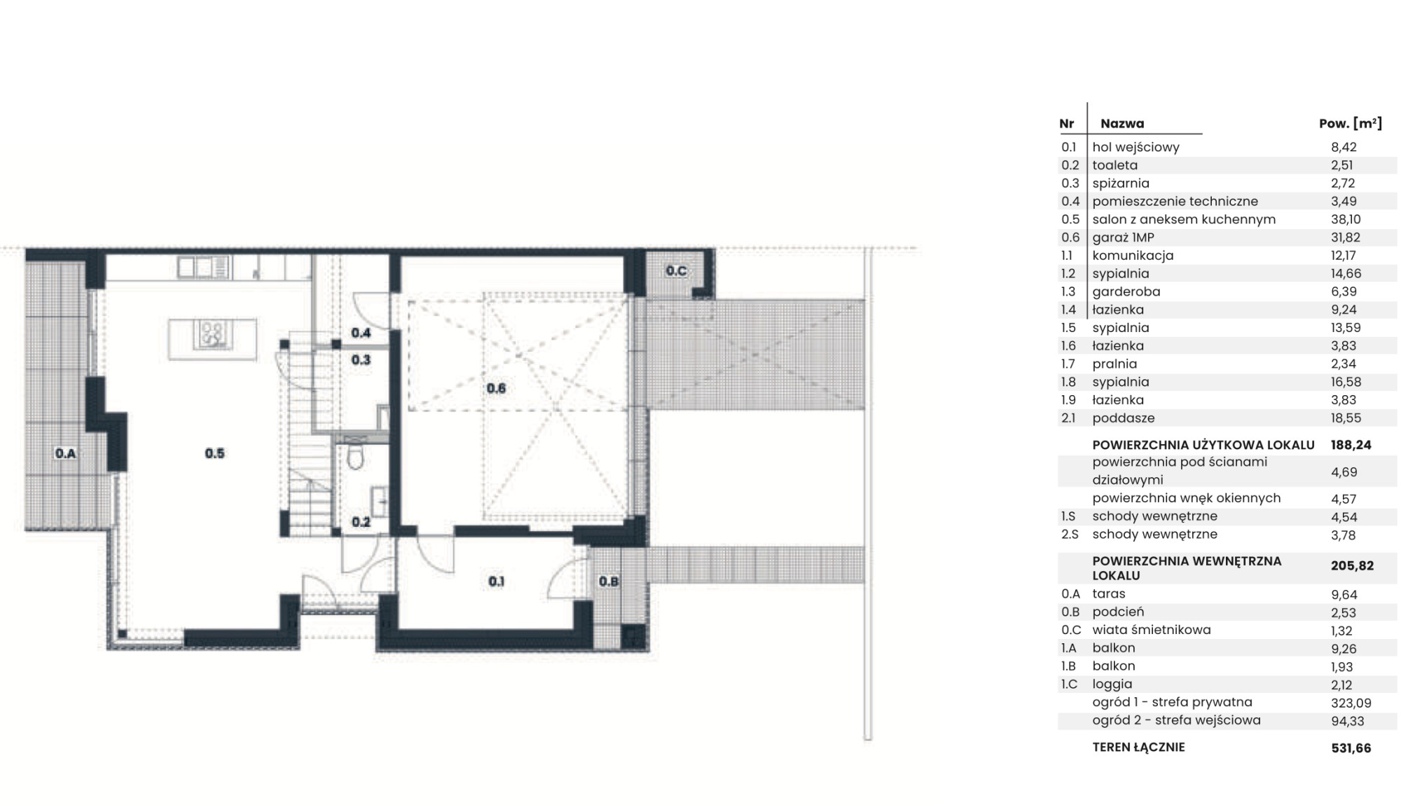
    Hol wejściowy - 8,42 m²
    Toaleta - 2,51 m²
    Spiżarnia - 2,72 m²
    Pomieszczenie techniczne - 3,49 m²
    Salon z aneksem kuchennym - 38,10 m²
    Garaż IMP - 31,86 m²
    Komunikacja - 12,17 m²
    Sypialnia - 14,66 m²
    Garderoba - 6,39 m²
    Łazienka - 9,24 m²
    Sypialnia - 13,59 m²
    Łazienka - 3,83 m²
    Pralnia - 2,34 m²
    Łazienka - 3,83 m²
    Łazienka- 3,83 m2
    Sypialnia- 16,58 m2
    Poddasze - 18,55 m²
    schody wewnętrzne 1.S - 4,64 m²
    schody wewnętrzne 2.S - 3,78 m²

    Dodatkowe elementy zewnętrzne:
    Taras - 9,64 m²
    Podcień - 2,53 m²
    Wiata śmietnikowa - 1,92 m²
    Balkon- 9,26 m²
    Balkon- 1,93 m²
    Loggia- 2,12 m²
    Ogród 1 (strefa prywatna) - 323,09 m²
    Ogród 2 (strefa wejściowa) - 94,33 m²
    Teren łącznie: 531,66 m²

    INFORMACJE DODATKOWE:
    - Garaż
    - Ogród
    - Teren zamknięty i strzeżony
    - Wywóz śmieci realizowany meleksem

    Posiadamy więcej ofert w tej Lokalizacji
    Zapraszam do kontaktu +48 780 741 333

    LOCATION:
    The apartment is located in a prestigious part of Wilanów, dominated by modern apartment buildings, restaurants, and cafés. Nearby, there are numerous shops (Lidl, Biedronka, Żabka), bakeries, pharmacies, banks, as well as schools and kindergartens — both public and international (Willy-Brandt Schule, British Primary School of Wilanów), the Wilanów Palace, Wilanów Lake, and many walking and cycling routes.
    The city center can be reached in approximately 15-20 minutes thanks to Wilanowska route and the metro line.

    PROPERTY:
    The interiors are bright and well-arranged, with high ceilings that enhance the sense of space and everyday comfort. The developer standard allows for individual interior design, while the large plot and garden provide the opportunity to create a private green space. It is an ideal place for those who value tranquility, a great location, and life in a large city.

    BUILDING DESCRIPTION:
    Area: approximately 188.24 m²
    Semi-detached house
    Three floors
    Delivered in developer standard
    Walls finished with gypsum plaster
    Cement screed floors - prepared for installation of any type of flooring
    Electrical and plumbing installations distributed - ready for connection of appliances and fixtures
    High-quality window and door joinery - ensuring good insulation and durability

    ROOM LAYOUT:
    Entrance hall - 8.42 m²
    Toilet - 2.51 m²
    Pantry - 2.72 m²
    Technical room - 3.49 m²
    Living room with kitchenette - 38.10 m²
    Garage - 31.86 m²
    Circulation area - 12.17 m²
    Bedroom - 14.66 m²
    Walk-in closet - 6.39 m²
    Bathroom - 9.24 m²
    Bedroom - 13.59 m²
    Bathroom - 3.83 m²
    Laundry room - 2.34 m²
    Bathroom - 3.83 m²
    Bathroom - 3.83 m²
    Bedroom - 16.58 m²
    Attic - 18.55 m²
    Internal stairs 1 - 4.64 m²
    Internal stairs 2 - 3.78 m²
    Additional exterior elements:
    Terrace - 9.64 m²
    Covered entrance - 2.53 m²
    Waste shed - 1.92 m²
    Balcony - 9.26 m²
    Balcony - 1.93 m²
    Loggia - 2.12 m²
    Garden 1 (private zone) - 323.09 m²
    Garden 2 (entrance zone) - 94.33 m²
    Total land area: 531.66 m²

    ADDITIONAL INFORMATION:
    Garage
    Garden
    Gated and secured community
    Waste collection carried out by electric cart

    We have more offers in this location.
    Feel free to contact us at +48 780 741 333


    Jeżeli poszukują Państwo więcej podobnych ofert, zapraszamy do współpracy z naszym biurem.

    Treść niniejszego ogłoszenia ma charakter informacyjny i nie stanowi oferty handlowej w rozumieniu Kodeksu Cywilnego.
    Zawarte w ogłoszeniu informacje pochodzą przede wszystkim z oświadczeń właściciela nieruchomości. Nasz zespół dokłada wszelkich starań, aby wszelkie informacje były rzetelnie i sprawdzone.

    Przy obsłudze rynku pierwotnego jako biuro nieruchomości nie pobieramy wynagrodzenie za usługę pośrednictwa.
    Nowoczesna willa na zamkniętym osiedlu Wilanów
    BEZ PCC * BEZ PROWIZJI
    LOKALIZACJA:

    Mieszkanie leży w reprezentacyjnej części Wilanowa, gdzie dominują nowe apartamentowce, restauracje, kawiarnie. Blisko znajdują się liczne sklepy (Lidl, Biedronka, Żabka), piekarnie, apteki, banki, a także szkoły i przedszkola - zarówno publiczne, jak i międzynarodowe (Willy-Brandt Schule, British Primary School of Wilanów), Pałac Wilanowski, Jezioro Wilanowskie oraz liczne trasy spacerowe i rowerowe.
    Dojazd do centrum zajmuje ok. 15-20 minut, dzięki trasie Wilanowskiej i linii metra

    NIERUCHOMOŚĆ:
    Wnętrza są jasne i ustawne, z wysokimi pomieszczeniami, co nadaje przestronności i komfortu codziennego użytkowania. Standard deweloperski pozwala na indywidualną aranżację wnętrza, a duża działka i ogród zapewniają możliwość stworzenia prywatnej, zielonej przestrzeni.To idealne miejsce dla osób ceniących spokój, dobrą lokalizację oraz życie w dużym mieście

    OPIS BUDYNKU:
    - Powierzchnia około 188,24 m²
    - Zabudowa bliźniacza
    - Trzy kondygnacje
    - Budynek jest oddany w standardzie deweloperskim
    - Ściany wykończone gładzią gipsową
    - Wylewki cementowe - przygotowane pod montaż dowolnego rodzaju podłóg.
    - Rozprowadzone instalacje elektryczne i hydrauliczne - gotowe do podłączenia urządzeń i armatury.
    - Wysokiej jakości stolarkę okienną i drzwiową - zapewnia dobrą izolację i trwałość.

    ROZKŁAD POMIESZCZEŃ:
    Hol wejściowy - 8,42 m²
    Toaleta - 2,51 m²
    Spiżarnia - 2,72 m²
    Pomieszczenie techniczne - 3,49 m²
    Salon z aneksem kuchennym - 38,10 m²
    Garaż IMP - 31,86 m²
    Komunikacja - 12,17 m²
    Sypialnia - 14,66 m²
    Garderoba - 6,39 m²
    Łazienka - 9,24 m²
    Sypialnia - 13,59 m²
    Łazienka - 3,83 m²
    Pralnia - 2,34 m²
    Łazienka - 3,83 m²
    Łazienka- 3,83 m2
    Sypialnia- 16,58 m2
    Poddasze - 18,55 m²
    schody wewnętrzne 1.S - 4,64 m²
    schody wewnętrzne 2.S - 3,78 m²

    Dodatkowe elementy zewnętrzne:
    Taras - 9,64 m²
    Podcień - 2,53 m²
    Wiata śmietnikowa - 1,92 m²
    Balkon- 9,26 m²
    Balkon- 1,93 m²
    Loggia- 2,12 m²
    Ogród 1 (strefa prywatna) - 323,09 m²
    Ogród 2 (strefa wejściowa) - 94,33 m²
    Teren łącznie: 531,66 m²

    INFORMACJE DODATKOWE:
    - Garaż
    - Ogród
    - Teren zamknięty i strzeżony
    - Wywóz śmieci realizowany meleksem

    Posiadamy więcej ofert w tej Lokalizacji
    Zapraszam do kontaktu +48 780 741 333

    LOCATION:
    The apartment is located in a prestigious part of Wilanów, dominated by modern apartment buildings, restaurants, and cafés. Nearby, there are numerous shops (Lidl, Biedronka, Żabka), bakeries, pharmacies, banks, as well as schools and kindergartens — both public and international (Willy-Brandt Schule, British Primary School of Wilanów), the Wilanów Palace, Wilanów Lake, and many walking and cycling routes.
    The city center can be reached in approximately 15-20 minutes thanks to Wilanowska route and the metro line.

    PROPERTY:
    The interiors are bright and well-arranged, with high ceilings that enhance the sense of space and everyday comfort. The developer standard allows for individual interior design, while the large plot and garden provide the opportunity to create a private green space. It is an ideal place for those who value tranquility, a great location, and life in a large city.

    BUILDING DESCRIPTION:
    Area: approximately 188.24 m²
    Semi-detached house
    Three floors
    Delivered in developer standard
    Walls finished with gypsum plaster
    Cement screed floors - prepared for installation of any type of flooring
    Electrical and plumbing installations distributed - ready for connection of appliances and fixtures
    High-quality window and door joinery - ensuring good insulation and durability

    ROOM LAYOUT:
    Entrance hall - 8.42 m²
    Toilet - 2.51 m²
    Pantry - 2.72 m²
    Technical room - 3.49 m²
    Living room with kitchenette - 38.10 m²
    Garage - 31.86 m²
    Circulation area - 12.17 m²
    Bedroom - 14.66 m²
    Walk-in closet - 6.39 m²
    Bathroom - 9.24 m²
    Bedroom - 13.59 m²
    Bathroom - 3.83 m²
    Laundry room - 2.34 m²
    Bathroom - 3.83 m²
    Bathroom - 3.83 m²
    Bedroom - 16.58 m²
    Attic - 18.55 m²
    Internal stairs 1 - 4.64 m²
    Internal stairs 2 - 3.78 m²
    Additional exterior elements:
    Terrace - 9.64 m²
    Covered entrance - 2.53 m²
    Waste shed - 1.92 m²
    Balcony - 9.26 m²
    Balcony - 1.93 m²
    Loggia - 2.12 m²
    Garden 1 (private zone) - 323.09 m²
    Garden 2 (entrance zone) - 94.33 m²
    Total land area: 531.66 m²

    ADDITIONAL INFORMATION:
    Garage
    Garden
    Gated and secured community
    Waste collection carried out by electric cart

    We have more offers in this location.
    Feel free to contact us at +48 780 741 333


    Jeżeli poszukują Państwo więcej podobnych ofert, zapraszamy do współpracy z naszym biurem.

    Treść niniejszego ogłoszenia ma charakter informacyjny i nie stanowi oferty handlowej w rozumieniu Kodeksu Cywilnego.
    Zawarte w ogłoszeniu informacje pochodzą przede wszystkim z oświadczeń właściciela nieruchomości. Nasz zespół dokłada wszelkich starań, aby wszelkie informacje były rzetelnie i sprawdzone.

    Przy obsłudze rynku pierwotnego jako biuro nieruchomości nie pobieramy wynagrodzenie za usługę pośrednictwa.
    rozwiń
    LOKALIZACJA

    Dorota Nowicka

    Doradca ds. Nieruchomości

    d.nowicka@viaestate.pl

    tel. 780 741 333

    Masz pytanie?





    Wyrażam zgodę na przetwarzanie danych osobowych w celach marketingowych przez firmę VIA Sp. z o.o., ul. Giewont 37, 02-829 Warszawa i zapoznałem się z polityką prywatności.

    PODOBNE OFERTY

    • Ekskluzywna rezydencja w sercu Miasteczka Wilanów
    • Nowoczesna willa z dużymi oknami pod Warszawie

    DODATKOWE INFORMACJE

    Numer oferty:
    VIA212170
    Powierzchnia użytkowa:
    188㎡
    Powierzchnia działki:
    532㎡
    Rok budowy:
    2025
    Liczba pokoi:
    4
    Liczba sypialni:
    3
    Liczba łazienek:
    2
    Rodzaj oferty:
    Sprzedaż
    Cena:
    4 400 000 PLN
    Cena za ㎡:
    23 404 PLN

    LOKALIZACJA