Warszawa Ochota
Luksusowy budynek biurowo-usługowy
**Luksusowy budynek biurowo-usługowy przy al. Jerozolimskich | Blue City | prywatny parking**
Do wynajęcia reprezentacyjny, wolnostojący budynek biurowo-usługowy klasy premium, położony w jednym z najbardziej strategicznych punktów Warszawy — przy ul. Opaczewskiej, zaledwie 50 metrów od Alej Jerozolimskich, w bezpośrednim sąsiedztwie centrum handlowego Blue City.
To wyjątkowa nieruchomość dla firm poszukujących prestiżowego adresu, niezależnej siedziby oraz komfortowej przestrzeni do prowadzenia działalności. Budynek pełnił wcześniej funkcję siedziby firmy, dzięki czemu jego układ i infrastruktura są doskonale przystosowane do potrzeb biznesowych.
Lokalizacja
Nieruchomość znajduje się w doskonałym punkcie komunikacyjnym, zapewniającym szybki dojazd zarówno do centrum Warszawy, jak i do głównych tras wyjazdowych z miasta. Położenie przy jednej z najważniejszych arterii stolicy gwarantuje świetną ekspozycję i wygodę dla pracowników, klientów oraz kontrahentów.
Dodatkowym atutem jest sąsiedztwo dużych, międzynarodowych firm, takich jak:
* Microsoft
* Orange Polska
* Bayer Polska
* Philips Polska
* Mercedes-Benz Polska
Nieruchomość
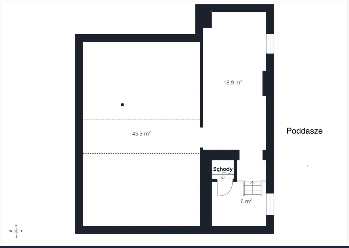
Budynek oferuje około **392 m²** powierzchni całkowitej, usytuowanej na działce o powierzchni **774 m²**.
W skład nieruchomości wchodzą:
* 5 pokoi / pomieszczeń biurowych,
* 2 łazienki,
* garaż,
* zaplecze techniczne,
* prywatny parking na terenie posesji.
Wysoki standard wykończenia sprawia, że nieruchomość może pełnić funkcję eleganckiej siedziby firmy, biura zarządu, kancelarii, showroomu lub placówki usługowej tj przedszkole, żłobek..
Najważniejsze atuty
* prestiżowa lokalizacja przy al. Jerozolimskich,
* wolnostojący, niezależny budynek,
* bardzo dobra widoczność i ekspozycja,
* szybki dojazd do centrum i tras wylotowych,
* prywatny parking dla pracowników i klientów,
* wysoki standard wykończenia,
* funkcjonalny układ dostosowany do działalności biznesowej.
Informacje dodatkowe
**Cena:** netto
**Dostępność:** od końca lutego
To idealna propozycja dla firm, które cenią sobie prestiż, niezależność, komfort pracy oraz doskonałą lokalizację biznesową.
---
## English version
**Premium detached office and service building for lease | Al. Jerozolimskie | Blue City | private parking**
We are pleased to offer for lease a premium-class detached office and service building located in one of Warsaw’s most strategic business locations — on Opaczewska Street, just 50 metres from Al. Jerozolimskie and in the immediate vicinity of Blue City shopping centre.
This unique property is an ideal solution for companies seeking a prestigious address, an independent headquarters and a highly functional business space. The building previously served as a corporate office, which means its layout and infrastructure are well suited for professional use.
Location
The property benefits from excellent transport links, providing fast access both to Warsaw city centre and to major outbound routes. Its position near one of the city’s key arterial roads ensures strong visibility and convenient access for employees, clients and business partners.
An additional advantage is its proximity to major international corporations, including:
* Microsoft
* Orange Polska
* Bayer Polska
* Philips Polska
* Mercedes-Benz Polska
Property details
The building offers approximately **392 sqm** of total area, set on a **774 sqm** plot.
The property includes:
* 5 office / functional rooms,
* 2 bathrooms,
* garage,
* technical back-office space,
* private on-site parking.
Finished to a high standard, the building is perfectly suited for use as a company headquarters, executive office, law firm, showroom or service-oriented business premises, kindergarten.
Key advantages
* prestigious location near Al. Jerozolimskie,
* detached and fully independent building,
* excellent visibility and exposure,
* quick access to the city centre and main exit routes,
* private parking for staff and clients,
* high-quality finish,
* practical layout tailored to business operations.
Additional information
**Price:** net
**Availability:** from the end of February
This is an excellent opportunity for companies looking for prestige, independence, comfort and a prime business location in Warsaw.
Jeżeli poszukują Państwo więcej podobnych ofert, zapraszamy do współpracy z naszym biurem. Treść niniejszego ogłoszenia ma charakter informacyjny i nie stanowi oferty handlowej w rozumieniu Kodeksu Cywilnego.
Zawarte w ogłoszeniu informacje pochodzą przede wszystkim z oświadczeń właściciela nieruchomości. Nasz zespół dokłada wszelkich starań, aby wszelkie informacje były rzetelnie i sprawdzone.
Przy obsłudze rynku wtórnego jako biuro nieruchomości pobieramy za usługę pośrednictwa wynagrodzenie w formie prowizji.
**Luksusowy budynek biurowo-usługowy przy al. Jerozolimskich | Blue City | prywatny parking**
Do wynajęcia reprezentacyjny, wolnostojący budynek biurowo-usługowy klasy premium, położony w jednym z najbardziej strategicznych punktów Warszawy — przy ul. Opaczewskiej, zaledwie 50 metrów od Alej Jerozolimskich, w bezpośrednim sąsiedztwie centrum handlowego Blue City.
To wyjątkowa nieruchomość dla firm poszukujących prestiżowego adresu, niezależnej siedziby oraz komfortowej przestrzeni do prowadzenia działalności. Budynek pełnił wcześniej funkcję siedziby firmy, dzięki czemu jego układ i infrastruktura są doskonale przystosowane do potrzeb biznesowych.
Lokalizacja
Nieruchomość znajduje się w doskonałym punkcie komunikacyjnym, zapewniającym szybki dojazd zarówno do centrum Warszawy, jak i do głównych tras wyjazdowych z miasta. Położenie przy jednej z najważniejszych arterii stolicy gwarantuje świetną ekspozycję i wygodę dla pracowników, klientów oraz kontrahentów.
Dodatkowym atutem jest sąsiedztwo dużych, międzynarodowych firm, takich jak:
* Microsoft
* Orange Polska
* Bayer Polska
* Philips Polska
* Mercedes-Benz Polska
Nieruchomość
Budynek oferuje około **392 m²** powierzchni całkowitej, usytuowanej na działce o powierzchni **774 m²**.
W skład nieruchomości wchodzą:
* 5 pokoi / pomieszczeń biurowych,
* 2 łazienki,
* garaż,
* zaplecze techniczne,
* prywatny parking na terenie posesji.
Wysoki standard wykończenia sprawia, że nieruchomość może pełnić funkcję eleganckiej siedziby firmy, biura zarządu, kancelarii, showroomu lub placówki usługowej tj przedszkole, żłobek..
Najważniejsze atuty
* prestiżowa lokalizacja przy al. Jerozolimskich,
* wolnostojący, niezależny budynek,
* bardzo dobra widoczność i ekspozycja,
* szybki dojazd do centrum i tras wylotowych,
* prywatny parking dla pracowników i klientów,
* wysoki standard wykończenia,
* funkcjonalny układ dostosowany do działalności biznesowej.
Informacje dodatkowe
**Cena:** netto
**Dostępność:** od końca lutego
To idealna propozycja dla firm, które cenią sobie prestiż, niezależność, komfort pracy oraz doskonałą lokalizację biznesową.
---
## English version
**Premium detached office and service building for lease | Al. Jerozolimskie | Blue City | private parking**
We are pleased to offer for lease a premium-class detached office and service building located in one of Warsaw’s most strategic business locations — on Opaczewska Street, just 50 metres from Al. Jerozolimskie and in the immediate vicinity of Blue City shopping centre.
This unique property is an ideal solution for companies seeking a prestigious address, an independent headquarters and a highly functional business space. The building previously served as a corporate office, which means its layout and infrastructure are well suited for professional use.
Location
The property benefits from excellent transport links, providing fast access both to Warsaw city centre and to major outbound routes. Its position near one of the city’s key arterial roads ensures strong visibility and convenient access for employees, clients and business partners.
An additional advantage is its proximity to major international corporations, including:
* Microsoft
* Orange Polska
* Bayer Polska
* Philips Polska
* Mercedes-Benz Polska
Property details
The building offers approximately **392 sqm** of total area, set on a **774 sqm** plot.
The property includes:
* 5 office / functional rooms,
* 2 bathrooms,
* garage,
* technical back-office space,
* private on-site parking.
Finished to a high standard, the building is perfectly suited for use as a company headquarters, executive office, law firm, showroom or service-oriented business premises, kindergarten.
Key advantages
* prestigious location near Al. Jerozolimskie,
* detached and fully independent building,
* excellent visibility and exposure,
* quick access to the city centre and main exit routes,
* private parking for staff and clients,
* high-quality finish,
* practical layout tailored to business operations.
Additional information
**Price:** net
**Availability:** from the end of February
This is an excellent opportunity for companies looking for prestige, independence, comfort and a prime business location in Warsaw.
Jeżeli poszukują Państwo więcej podobnych ofert, zapraszamy do współpracy z naszym biurem. Treść niniejszego ogłoszenia ma charakter informacyjny i nie stanowi oferty handlowej w rozumieniu Kodeksu Cywilnego.
Zawarte w ogłoszeniu informacje pochodzą przede wszystkim z oświadczeń właściciela nieruchomości. Nasz zespół dokłada wszelkich starań, aby wszelkie informacje były rzetelnie i sprawdzone.
Przy obsłudze rynku wtórnego jako biuro nieruchomości pobieramy za usługę pośrednictwa wynagrodzenie w formie prowizji.
rozwiń
